Chalet des Roses
Val-d'Illiez, 2023 - 2024, réalisé









































C’est à Val-d’Illiez, sur le versant est de la montagne que se trouve cet ancien bâtiment datant de 1806 : le Chalet des Roses. A l’époque de sa construction, il disposait d’une étable et d’une grange comme la plupart des habitations de la région, permettant aux occupants d’en faire un lieu de vie et de travail. Les habitudes et modes de vie évoluant avec le temps, le bâtiment a subi une première transformation en 1994. Les parties non utilisées comme l’étable et la grange de l’étage ont fait place à des nouvelles pièces de vie pour la famille qui s’agrandissait.
C’est en 2024, soit 30 ans après, que s’achève la seconde rénovation. Depuis les années 90, les installations et équipements étaient devenus vétustes. Pour des raisons tant économiques qu’écologiques, plusieurs aspects du bâtiment méritaient qu’on s’y attarde pour les améliorer, et cela concernait principalement l’enveloppe thermique et la production d’énergie. L’élaboration d’un CECB+ a permis de définir plus précisément quels étaient les points faibles du chalet et quels étaient ses meilleurs potentiels d’amélioration.
Rapidement il a été décidé de remplacer le chauffage à énergie combustible par une pompe à chaleur. Avec cette dernière s’est accompagnée l’idée de placer des panneaux solaires photovoltaïques en toiture. Comme la charpente était en relativement mauvais état, elle a été entièrement remplacée. Ça a été une excellente occasion pour améliorer l’isolation sur le toit, ajouter des vitrages pour éclairer naturellement les pièces en dessous auparavant très sombres et trouver un moyen d’intégrer les modules photovoltaïques au reste de la couverture. Un point important qui tenait particulièrement à cœur des propriétaires était de conserver la charpente en rondins de bois apparents à l’intérieur.
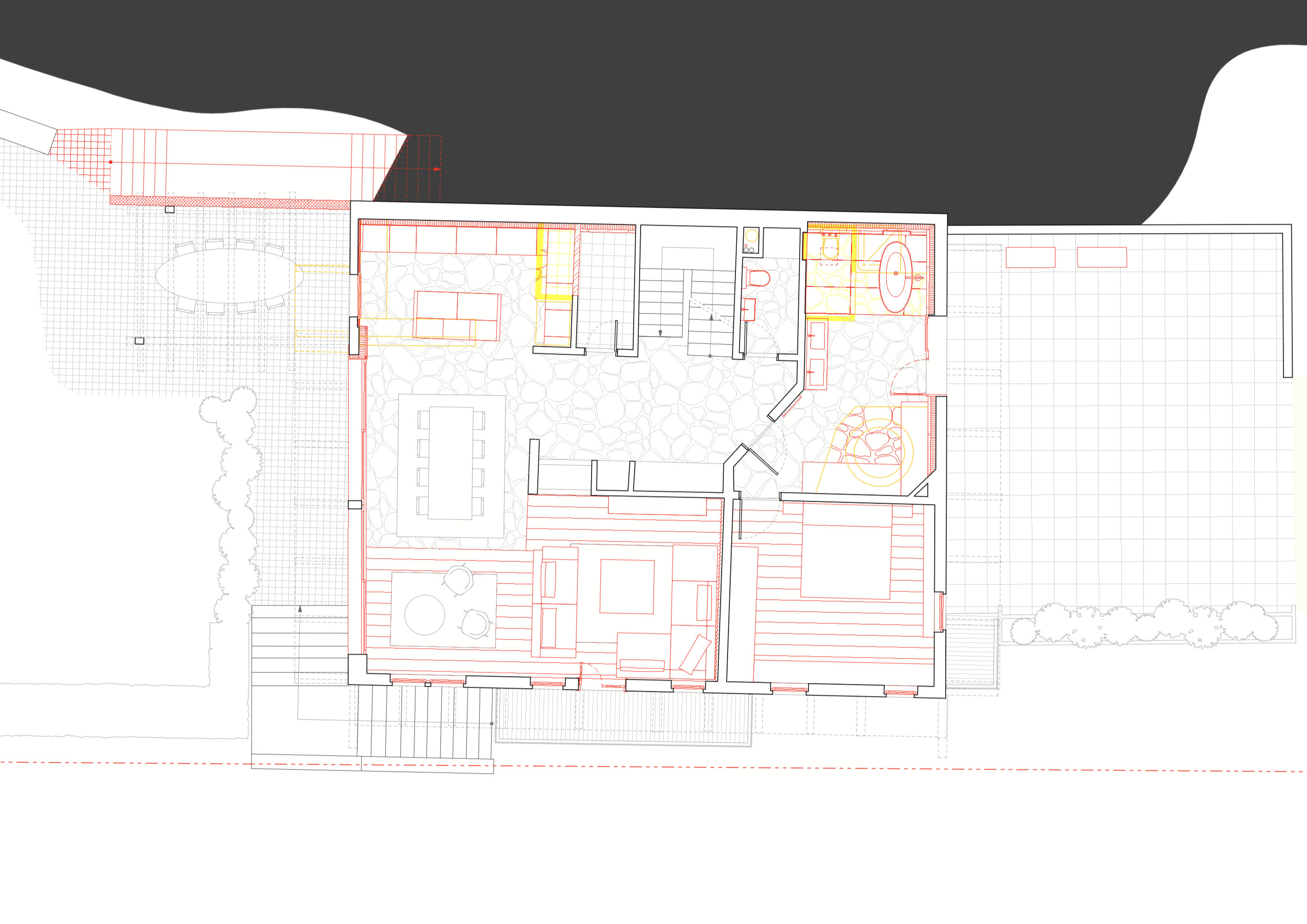
Pour garantir une étanchéité parfaite et une continuité entre le toit et les façades, il a été décidé de refaire l’intérieur de l’étage sous les combles. Ça a permis d’isoler la périphérie des murs côté intérieur et de revoir entièrement l’aménagement des pièces et des salles de bain du deuxième étage. Les appareils sanitaires ont été remplacés et un carrelage constitué de grandes plaques a rhabillé les sols et une partie des murs des salles de bain. Le concept d’éclairage a été repensé et la rénovation a permis d’intégrer des rails de LED directement dans les menuiseries. Une grande partie du mobilier a été imaginée et conçue sur mesure pour les divers besoins et usages des occupants. Plusieurs de ces exemples sont à retrouver dans la section mobilier.
Mandat Direct
Statut Construit
Programme Rénovation énergétique de l'enveloppe, réaménagements intérieurs
Ingénieur CVS AcroWatt sàrl
Charpente/menuiserie/mobilier Gex-Fabry menuiserie charpente Sàrl
Couverture Dubosson ferblanterie couverture sanitaire Sàrl
Photovoltaïque Bühler Électricité SA
Chauffage Parchet Frères SA
Sanitaire MJ Sanitaire chauffage Sàrl
Électricité MUD Électricité Troistorrents
Surface 500 m2
Volume 1'530 m3