Halle industrielle pour une entreprise de transports
Aigle, 2023 - en cours



































Sur la rive vaudoise du Rhône, dans la zone industrielle d’Aigle se trouve une bande de parcelles qui a récemment été définie comme zone à bâtir. C’est dans le virage à l’extrémité nord que l’entreprise Boven Transports a eu l’opportunité de réaliser son projet de halle. Le mandant possédant une collection de véhicules longs et parfois difficilement manœuvrables au vu de la nature des différents types de transport, cette situation avec un accès sur deux routes, au nord et à l’ouest, est un avantage certain.
Les besoins de l’entreprise sont surtout de stocker les véhicules autour et/ou dans la halle, c’est pour cette raison que l’espace autour du bâtiment est dénué d’aménagement. Une bande végétale au sud de la parcelle permet de marquer la limite et fait également office de bassin d’infiltration.
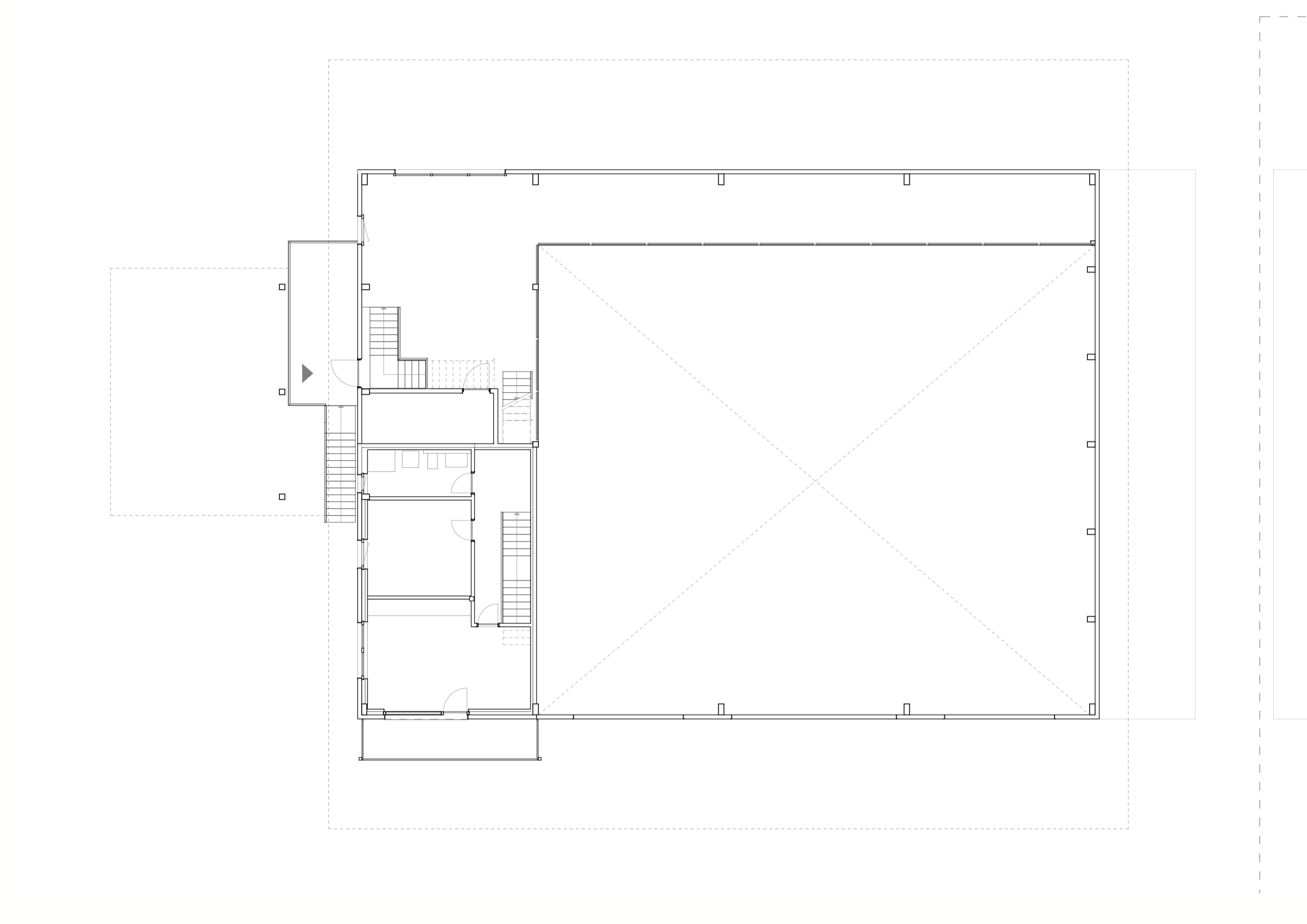
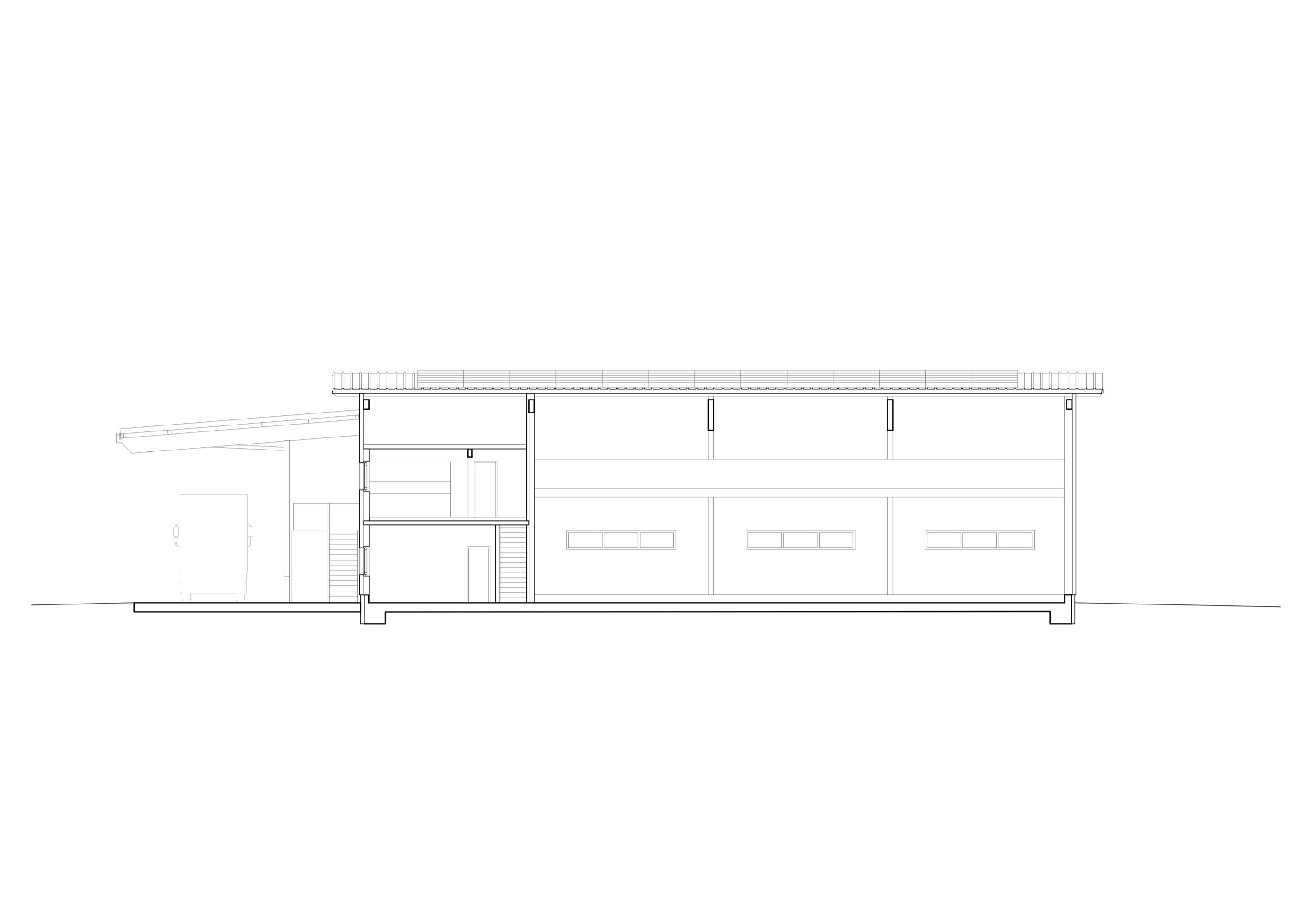
Dans le bâtiment se trouvent trois espaces distincts. La halle, vaste volume de hauteur importante, permet de garer des véhicules comprenant des équipements de tailles variables. Une mezzanine située au fond du bâtiment et longeant la plus longue façade offre une possibilité de stockage pour divers outils et matériels. Trois grandes portes sectionnelles permettent de faire entrer toutes sortes de véhicules. Au rez-de-chaussée, accessible par la façade sud, un sas d’entrée mène soit aux espaces du personnel administratif (bureaux, vestiaires, salle de repos), soit à l’étage, à un appartement de service. Ce dernier dispose d’une vue entièrement dégagée au sud sur les dents du Midi et à l’ouest sur la végétation luxuriante bordant le Rhône.
Mandat Direct
Statut En cours de construction, fin prévue novembre 2025
Programme Halle industrielle, bureaux et logement de gardiennage
Ingénieur GC PMF Ingénieur Conseils SA
Ingénieur CVS LR Concept Sàrl
Charpente/menuiserie Volprod SA
Béton armé/maçonnerie Cuénod & Payot Chablais SA
Chauffage/sanitaire Gippa Jean-Jacques SA
Installations électriques Moret Claude SA
Surface 770 m2
Volume 4'700 m3