Projet de musée
Arles, 2018 - 2019














« Le musée est un des lieux qui donnent la plus haute idée de l’homme. »
- ANDRÉ MALRAUX, LE MUSÉE IMAGINAIRE
La collection Gandur possède des trésors se catégorisant dans divers domaines : Archéologie, Ethnologie, Arts décoratifs et Beaux-Arts. Réunies, les œuvres de chaque domaine constituent un ensemble capable de porter et de transmettre des valeurs autant éducatives que culturelles. Ce projet de lieu de vie et d’art propose de construire un bâtiment où ces collections pourraient enfin être révélées aux yeux de tous : un musée dédié à l’art ainsi qu’à l’origine de la civilisation du bassin méditerranéen.
Le projet est imaginé à Arles, ville connue pour ses nombreux vestiges romains, mais aussi pour les séjours effectués par des artistes modernes tels que Van Gogh ou Picasso. Le bâtiment s’inscrit en périphérie de la vieille ville, à la pointe nord du triangle culturel formé par le musée départemental Arles antique et le parc des ateliers Luma Arles.
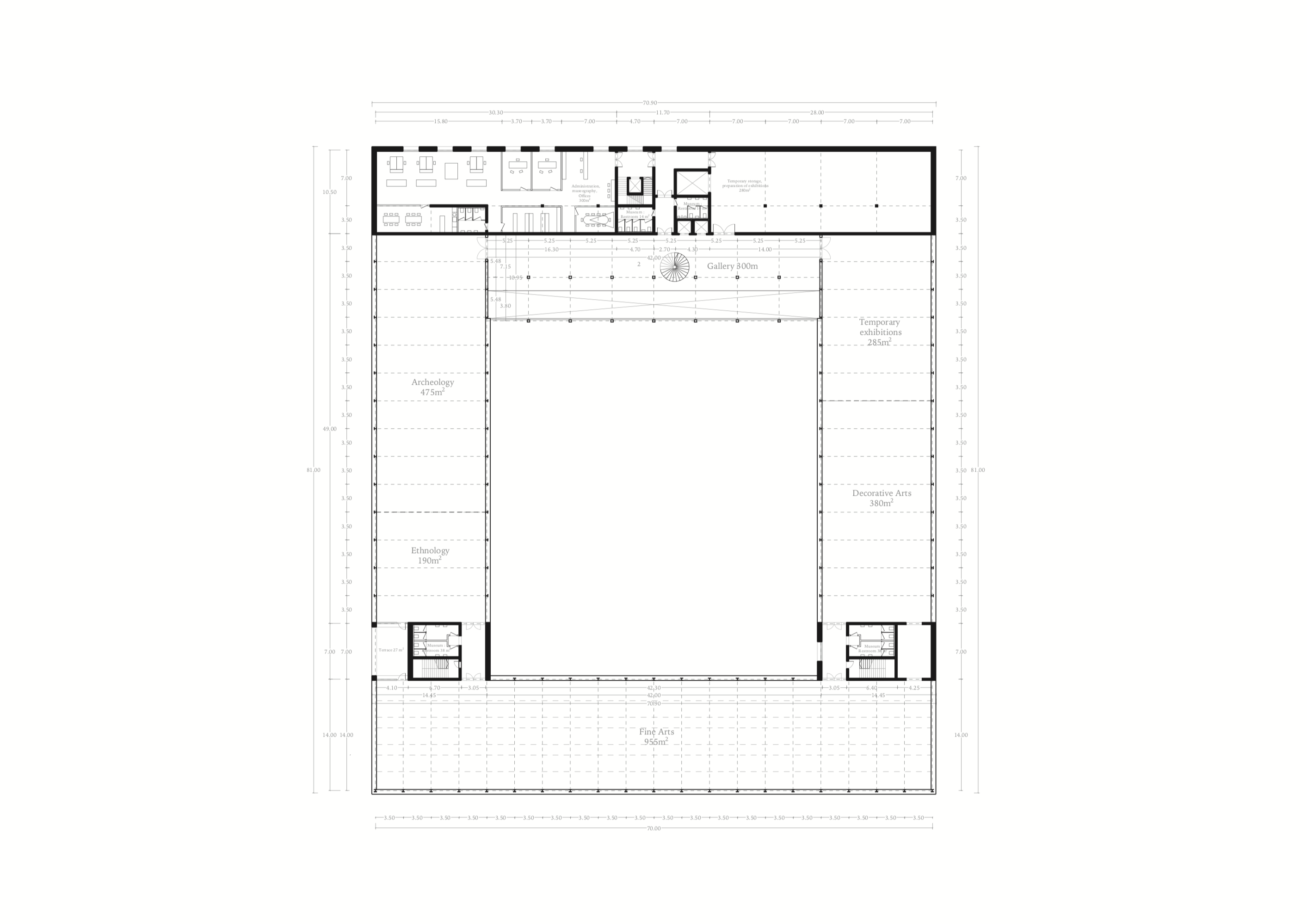
La façade donnant sur la place est entièrement ouverte au rez-de-chaussée, ce qui invite plus facilement les visiteurs à accéder à la cour. Une série de piliers soutiennent la partie supérieure et rythment l’espace public. Une fois passé ce seuil de transition apparaît la cour : un espace large, lumineux et luxuriant de végétation, distribuant les accès aux différents programmes situés en périphérie. Au rez-de-chaussée, ces espaces destinés au public sont très accessibles. Les façades volontairement transparentes permettent de comprendre ce qui se passe à l’intérieur et d’y encourager l’entrée.
Le musée et les expositions qu’il propose se situent au premier étage. On y accède par le foyer, facilement repérable depuis la cour. Il se trouve derrière la façade qui se démarque le plus singulièrement des autres : celle-ci est entièrement vitrée et dispose de lames horizontales qui agissent comme des filtres solaires. Le foyer est un peu comme le cœur du bâtiment, avec l’accueil et la galerie au-dessus. Il se développe sur une double hauteur, offrant un espace généreux aux visiteurs. De la galerie, on profite d’une vue privilégiée sur la cour.
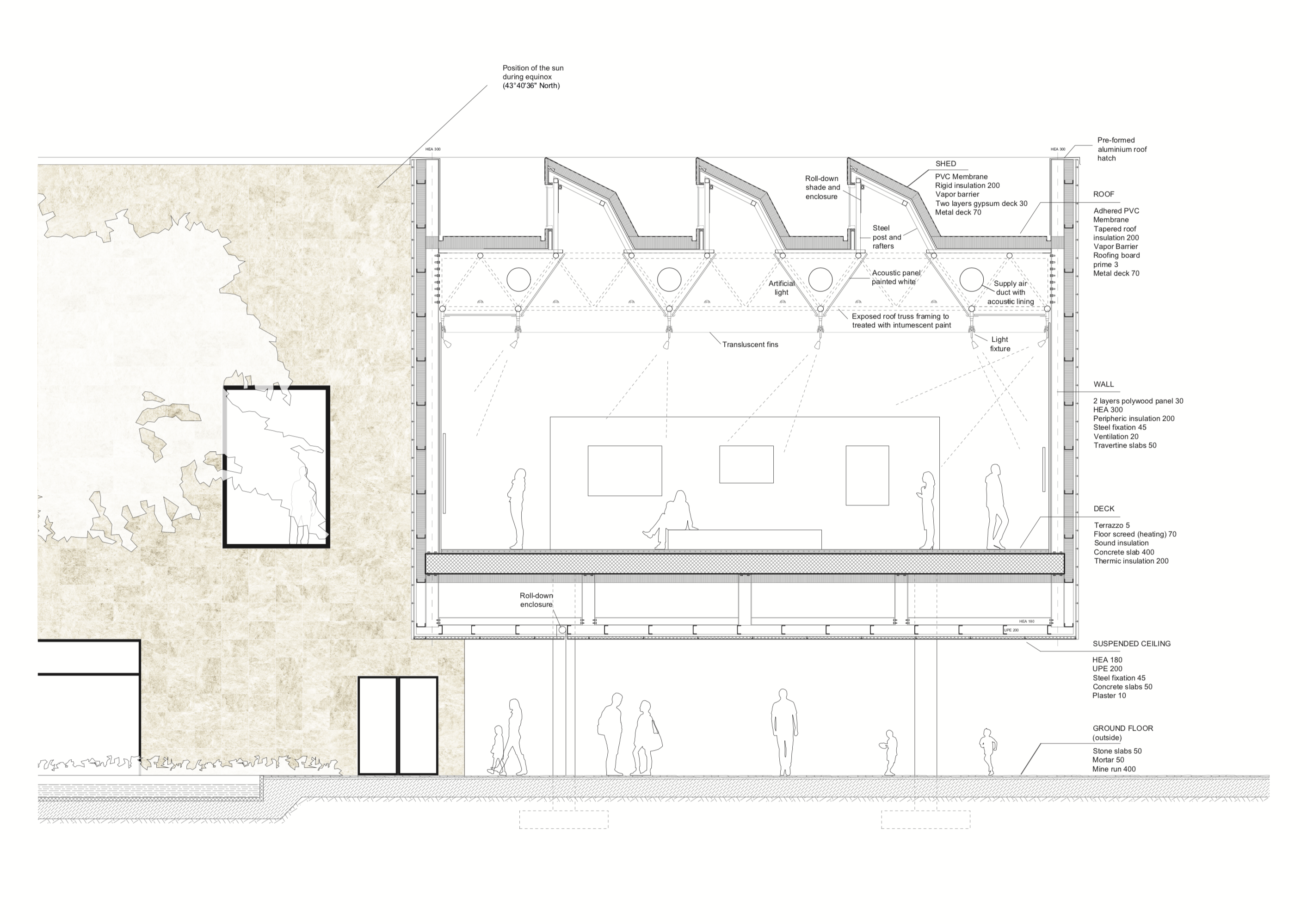
Concernant l’éclairage intérieur des espaces d’exposition, les collections d’archéologie, d’ethnologie et d’arts décoratifs possèdent de nombreux objets très anciens et fragiles, tels que des papyrus, des bois polychromes et certains tissus, qui ne peuvent pas être exposés à la lumière naturelle. Le toit et les murs sont donc hermétiques à la lumière du soleil et l’éclairage est géré artificiellement.
Pour les Beaux-Arts, c’est un peu différent. Cette section fonctionne davantage comme une galerie de peinture, car on y trouve presque exclusivement des œuvres de surface. Un système de sheds placés sur le toit et orientés vers le nord permet d’amener la lumière naturelle à l’intérieur, et, grâce au plafond translucide, de la redistribuer dans les salles.
Type Projet de Master, année académique 2019
Programme Musée
Groupe de suivi Harry Gugger, Martin Fröhlich & Augustin Clément
Surface 6'920 m2
Volume 38'980 m3