Immeubles promenade du Canal
Sion, 2024 -













Situé dans l’est sédunois, cet ensemble d’immeubles s’impose sur une parcelle à présent en friche. Prenant place non loin du centre de Sion et idéalement situé par rapport à la mobilité et aux accès, ce bâtiment dispose d’une situation géographique particulièrement privilégiée. La parcelle se situe non loin de l’embranchement autoroutier, tout en longeant le canal de Vissigen, offrant à la fois un accès rapide aux grandes voies, tout en conservant une proximité au vieux centre-ville, permise et renforcée par la promenade du Canal. Les aménagements ont été imaginés de manière à pouvoir privilégier la mobilité douce tout en offrant un cadre environnemental de qualité pour les habitants du quartier.
Comme son nom l’indique, la promenade située du côté sud-est de la parcelle doit pouvoir offrir un cadre plaisant aux passants. Ce chemin étant accessible par tous, les aménagements entre l’ensemble bâti et cet espace d’utilité publique ont été réfléchis de manière à réaliser une séparation visuelle et physique entre le rez-de-chaussée et le chemin longeant le Canal. Un mur de rétention permettant d’absorber la différence de hauteur de un mètre entre les deux est ainsi prévu. Ce mur permet d’intégrer des places pour les vélos et à certains endroits, des arbres.
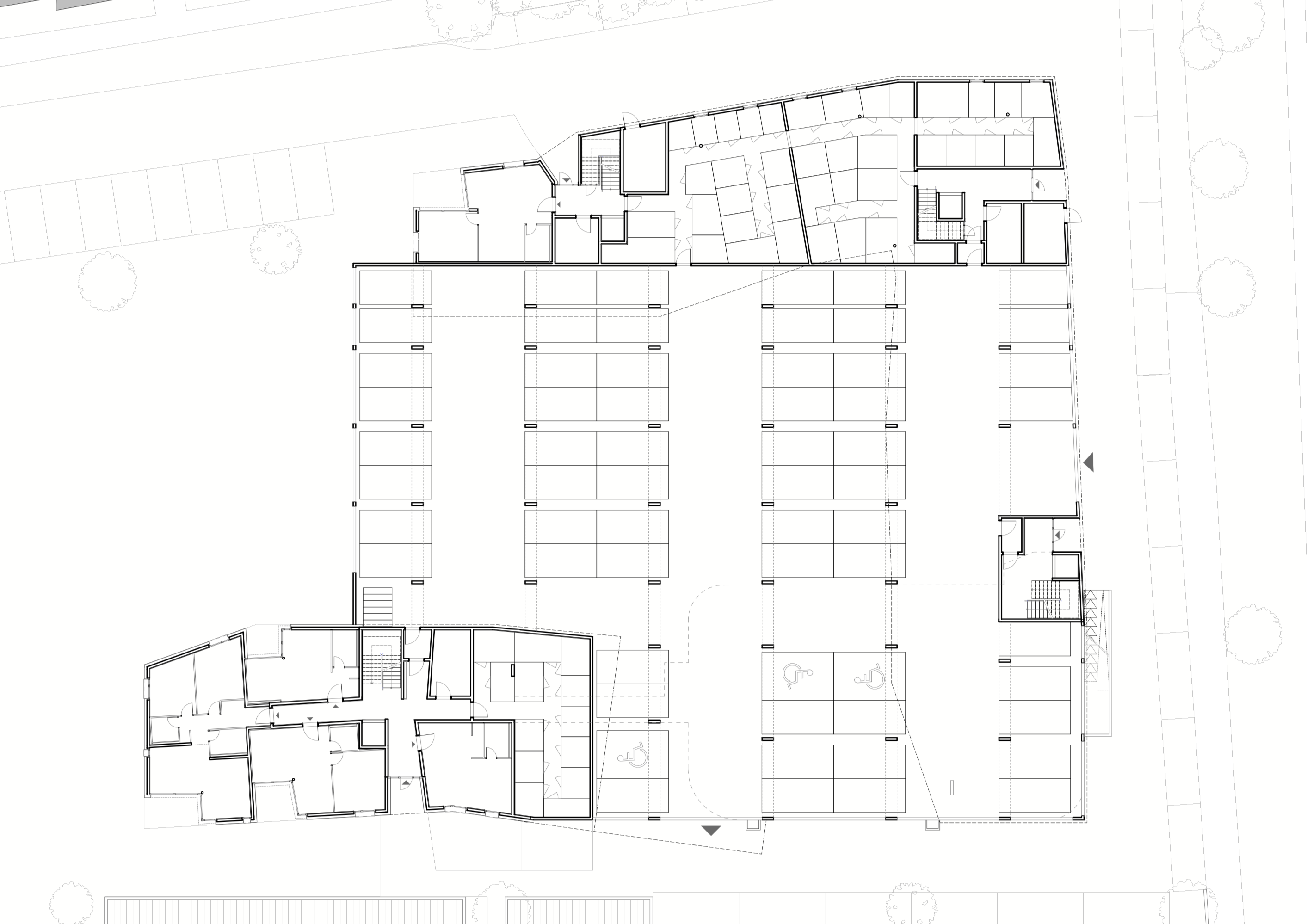
Quant aux bâtiments, l’ensemble est composé de deux immeubles partageant un socle commun dans lequel on trouve le parking. Au-dessus, un vaste espace vert relie physiquement toutes les entrées, ce qui permet aux habitants de se retrouver aisément. Cet espace est comme un parc pour les habitants, il accueille des installations de jeux pour les enfants et des arbres ainsi que des bancs invitant à la contemplation.
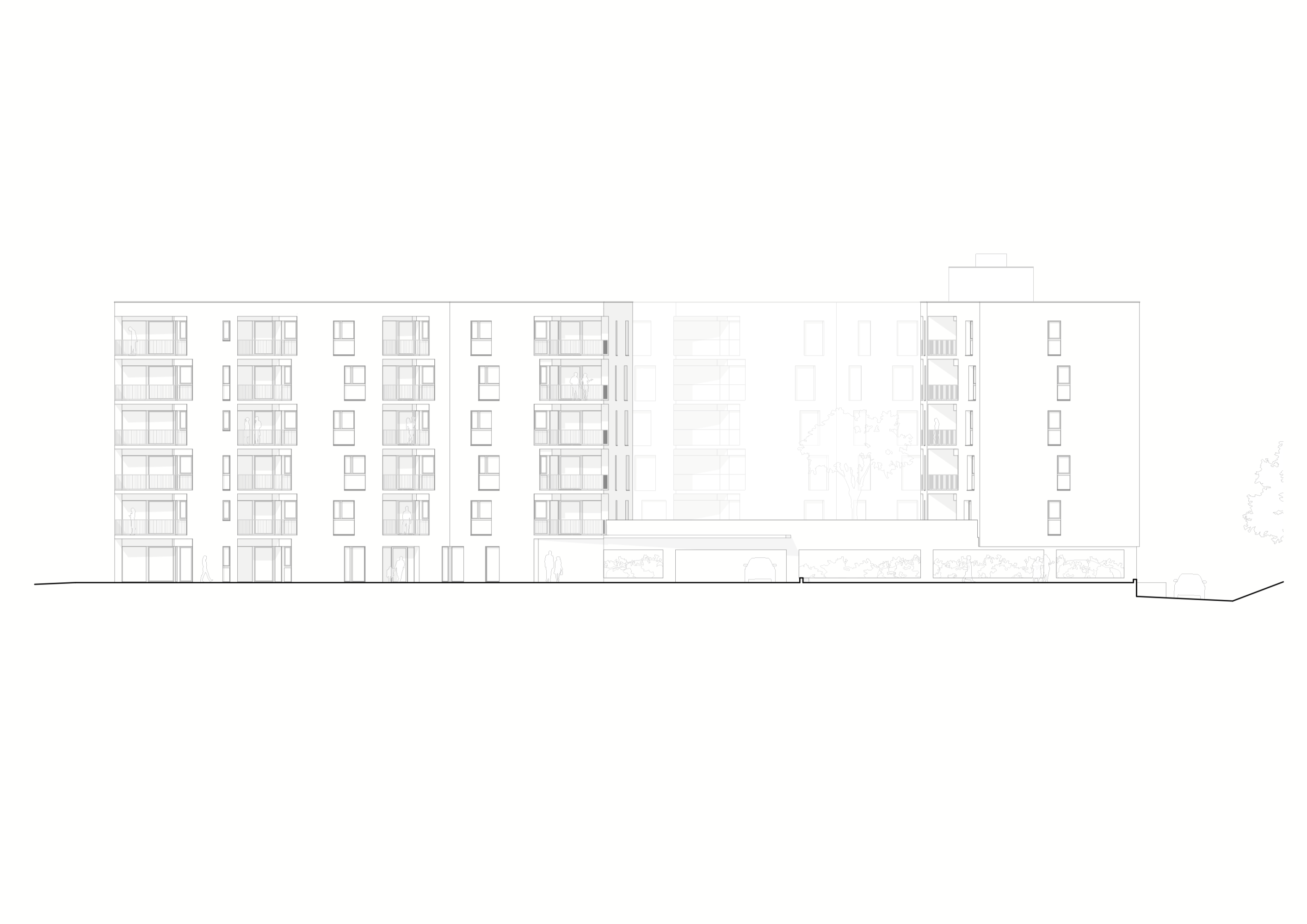
La géométrie du bâti reprend en quelque sorte celle de son voisin situé un peu plus haut sur la rue des Echutes. Ses diagonales se répondent et utilisent le même langage. Les fenêtres se décalent d’étage en étage, donnant aux façades des interruptions, accentuant ainsi l’impression générale de mouvement. Les typologies varient de simples studios jusqu’à des 4,5 pièces. Ce projet accueille 99 appartements. Chaque appartement dispose d’une terrasse intégrée dans le volume général, conservant ainsi cette impression de bloc massif, tout en amenant généreusement de la lumière à l’intérieur.
Mandat Direct
Statut Permis obtenu
Programme Logements collectifs
Collaborateur Robin Lindemann SA
Surface 8'180 m2
Volume 28'400 m3